“Playing house” is my favorite- arranging furniture, brainstorming ideas for improved function and flow and creating a cozy atmosphere are where it’s at for me and I’m blessed to serve my people in those ways.

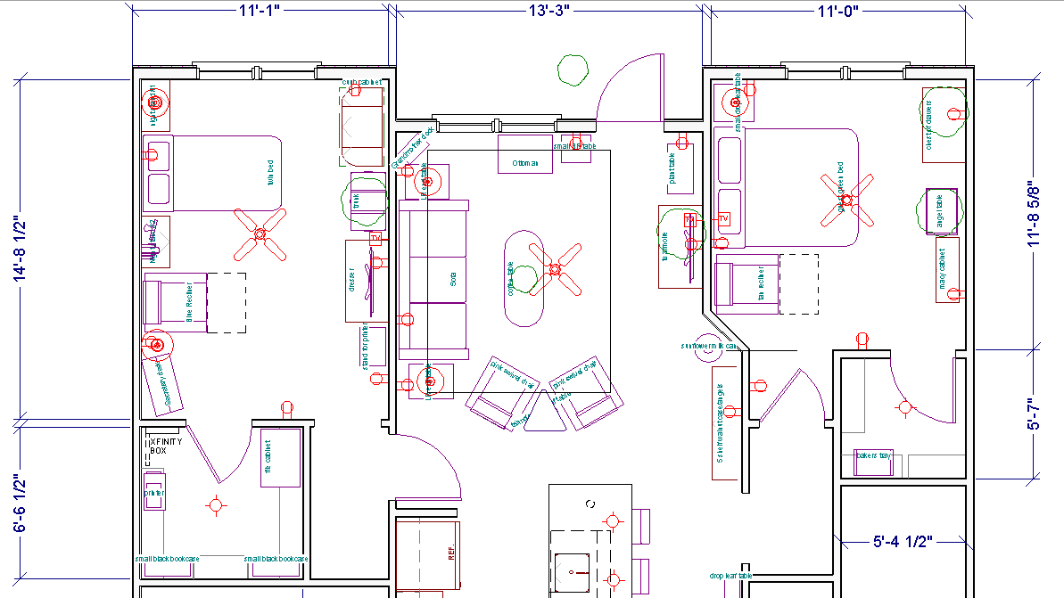
Earlier this summer, my sweet client Miss S was downsizing and asked for some space planning help. Moving to a smaller apartment and thinking she’d have to give up more of her family heirlooms was making her more than a little nervous! We measured all the existing furniture that she wanted to keep along with the pieces she’d like to keep but would be willing to let go if she really had to and I toured the new apartment making a floor plan and sketching out the rooms to scale.

A few days later, the plan came together and I’m happy to say there was no furniture left behind! By getting a little creative with displaying the Heisey glass she collected with her late husband in the bedroom, tucking extra bookshelves in closets and using one of the bar stools to double as her desk chair, all of her treasured pieces were able to make the move with her.

I gave her some recommendations for rugs (which she’s still deciding on!) And we sorted through her awesome artwork collected over many travels and just began to hang some groupings. It’s so fun to see a plan come together and even more rewarding to see her thriving and enjoying all her treasured memories in her new sunny space!

Tips to make your next move easier:
• Purge your belongings well ahead of time- work smarter, not harder and don’t move anything you don’t have to! Before the moving truck comes is the time to have that yard sale or schedule that donation pickup.
• Use painters tape to label your furniture with the room it will be living in so you can cut down on the number of questions on moving day. Also label the doors to the rooms so there’s no question which bedroom is which. We made a detailed floor plan for Miss S and all her movers had to do was match the furniture to the floor plan they had for each room.
• Set up your bed first. Put someone in charge of making it up as soon as you get there. There’s nothing sadder than staring at a bare mattress and wondering where the sheets are after a long day of moving..
• Label your boxes with the room they are going in. You do not want to be sorting through 50 boxes the night you move in looking for those bedsheets… trust me on this one!
• If you’re handy with a tape measure and graph paper, layout your new space to scale and make paper cutouts of all your furniture pieces. This method lets you do a little pre-move-in arranging so you’ll end up with a semi-functional space right off the bat. You’ll be desperate for a soft place to sit after a day of schlepping boxes!
• Hire me to take some of the stress off your plate! ♥


P.S. For an easy reference in creating your own floor plans or just keeping all your measurements handy when shopping for your home, download these free cheat sheets!

And don’t forget to get on the list for more info on my dream home workshop coming soon!




1 thought on “Stress Free Moving Tips & Furniture Arranging for your New Home”